$0
A110 - 8233 208B STREET
Langley, British Columbia, V2Y4M7
0About This Property
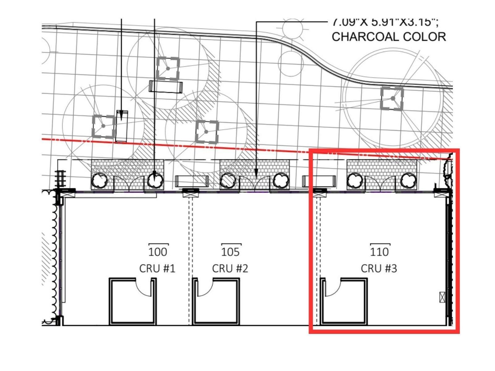
Located in the highly sought-after Willoughby, Langley area. This 682 sqf CORNER shell unit offers exceptional visibility at the bustling intersection of 208 St and 83rd Ave. Surrounded by a growing residential community and within walking distance to Willoughby Town Centre, this high-foot-traffic location is ideal for a variety of businesses. Enjoy the convenience of street parking right in front and three dedicated parking spots exclusive to the unit. With rapid new developments in the area, this space is perfect for businesses such as take-out and fast food restaurants, cafés, financial services, general office use (notary, lawyer, accountant, real estate) medical and veterinary clinics, barbershops, salons, dry cleaners, tailors, spas, yoga and dance studios, coaching institutes, and more. (id:64938)
Quick Info
MLS#
C8075209
Days on Market
61
Listed On
Jan 16, 2026

Aman Nanda
Personal Real Estate Corporation
Property Details
Architecture
Tax / Financial
Location
Not sure what you can afford?
Find out in under 2 minutes — no credit check, no commitment. See your estimated approval amount and monthly payment instantly.

Listing Office
Listing provided courtesy of YPA Your Property Agent

Aman Nanda
Personal Real Estate Corporation











